Renata Válková
E-mail

Prodej chaty, 35 m2, Luleč

Hledáte místo, kde se zastaví čas, kde ráno zpívají ptáci a večer slyšíte jen praskání dřeva v kamnech?
Tahle celodřevěná chata z modřínu v obci Luleč, pár minut od Vyškova, nabízí přesně to – klid, vůni lesa a poctivou stavbu, která vydrží generace.

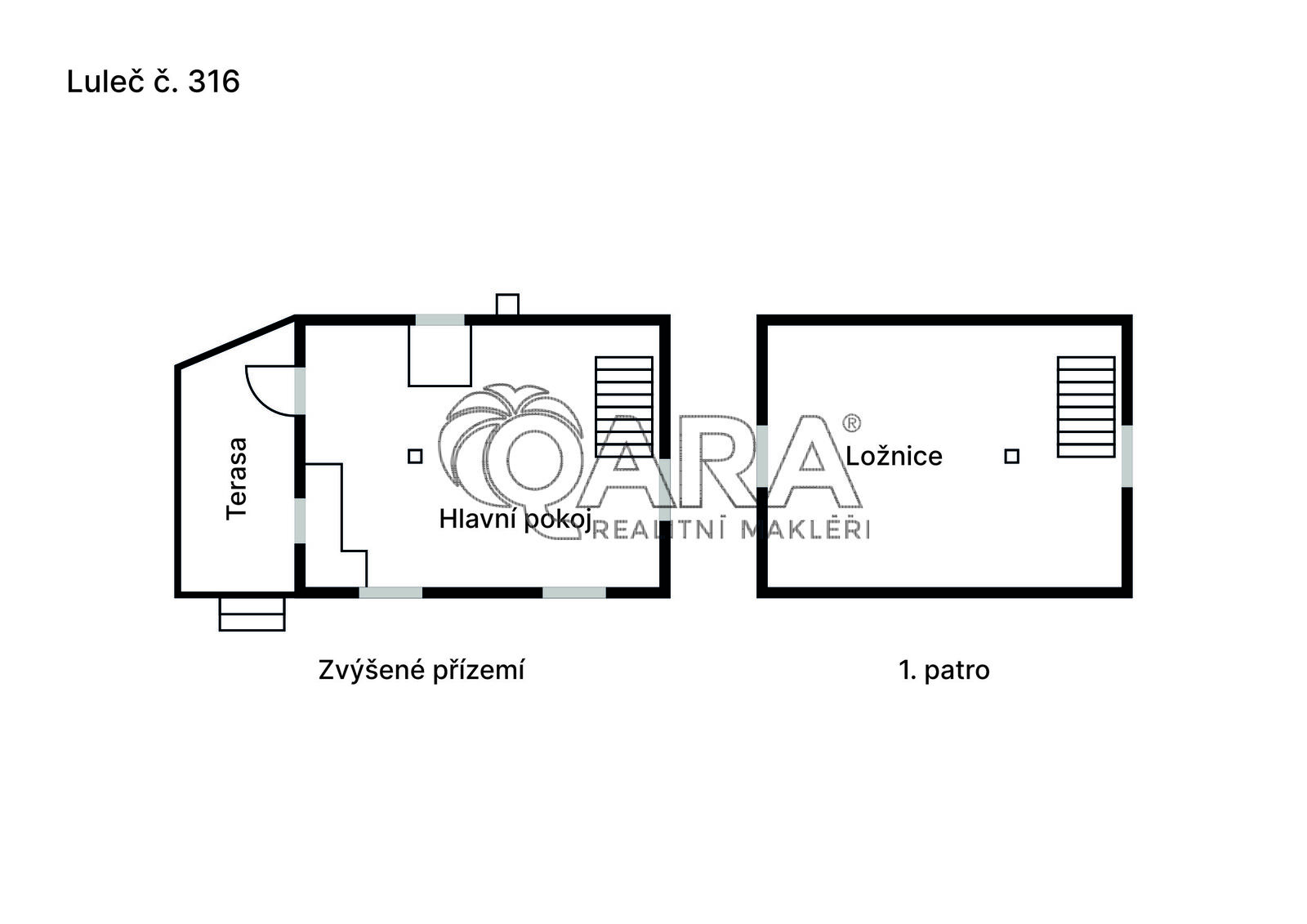
Chata byla postavena v roce 2012, má užitnou plochu 35 m² a zastavěnou 27 m².

prodávám Prodej chaty, 35 m2, Luleč

Obytná plocha

35 m2

Umístění

okraj obce

Konstrukce budovy

dřevěná

Plocha pozemku

533 m2

Počet podlaží

1

Hledáte místo, kde se zastaví čas, kde ráno zpívají ptáci a večer slyšíte jen praskání dřeva v kamnech?
Tahle celodřevěná chata z modřínu v obci Luleč, pár minut od Vyškova, nabízí přesně to – klid, vůni lesa a poctivou stavbu, která vydrží generace.

Chata byla postavena v roce 2012, má užitnou plochu 35 m² a zastavěnou 27 m².
Pozemek o velikosti 498 m² je rovinatý, oplocený a obklopený zelení.

Stavba je kvalitně zateplená (12 cm vaty, parozábrana, termoskla, šindelová střecha s izolací), má měděné rozvody elektřiny, rozvody pro užitkovou vodu a certifikovaný zděný komín.
Je ideální k rekreaci.

Luleč je vyhledávaná lokalita s krásnou přírodou, přírodním koupalištěm U Libuše, lesy a turistickými stezkami.
Perfektní dostupnost – 10 minut od Vyškova, 30 minut z Brna.

Místo, kde se dýchá…číst více  

Hledáte místo, kde se zastaví čas, kde ráno zpívají ptáci a večer slyšíte jen praskání dřeva v kamnech?
Tahle celodřevěná chata z modřínu v obci Luleč, pár minut od Vyškova, nabízí přesně to – klid, vůni lesa a poctivou stavbu, která vydrží generace.

Chata byla postavena v roce 2012, má užitnou plochu 35 m² a zastavěnou 27 m².
Pozemek o velikosti 498 m² je rovinatý, oplocený a obklopený zelení.

Stavba je kvalitně zateplená (12 cm vaty, parozábrana, termoskla, šindelová střecha s izolací), má měděné rozvody elektřiny, rozvody pro užitkovou vodu a certifikovaný zděný komín.
Je ideální k rekreaci.

Luleč je vyhledávaná lokalita s krásnou přírodou, přírodním koupalištěm U Libuše, lesy a turistickými stezkami.
Perfektní dostupnost – 10 minut od Vyškova, 30 minut z Brna.

Místo, kde se dýchá lépe. Přijeďte se podívat – možná právě tady najdete svůj klid.

Tuto nemovitost jsme umístili na trh za cenu

3 180 000

Chci více informací
Zastavěná plocha 27 m2
Obytná plocha 35 m2
Plocha pozemku 533 m2
Počet NP 1
Název obce Luleč
Konstrukce budovy dřevěná
Zobrazit více fotografií

Zajímá vás něco konkrétního?
Neváhejte se zeptat.

  • PRODEJ
  • NÁKUP
  • PRONÁJEM
  • INVESTICE
  • HLEDÁNÍ
  • PORADENSTVÍ
Renata Válková

Renata Válková

+420 606 904 348
renata@renatavalkova.cz


Poděbradova 276/28,
612 00 Brno-Královo Pole
683 03 Luleč 424


IČ: 01781111